1545 Minnie Ave

1545 Minnie Ave, Mound, MN 55364
$ 2,780,000
0.49 acres
2,154 sqft

Welcome to your year-round lake life dream, just one block from the sandy shores of Lake Minnetonka’s sandy beach. This exquisitely designed new construction home at 1545 Minnie Avenue is where thoughtful craftsmanship, designer finishes, and the ultimate lake lifestyle converge.

Set on an oversized lot (3 lots combined into 1) surrounded by mature trees, this home offers a sense of seclusion and grandeur. Two oversized double garages provide rare, abundant storage for lake toys, vehicles, and recreational gear—ideal for paddleboards, jet skis, bikes, and beach essentials. Whether you’re entertaining after a lake day or hosting out-of-town guests, there’s room for everyone—and everything.

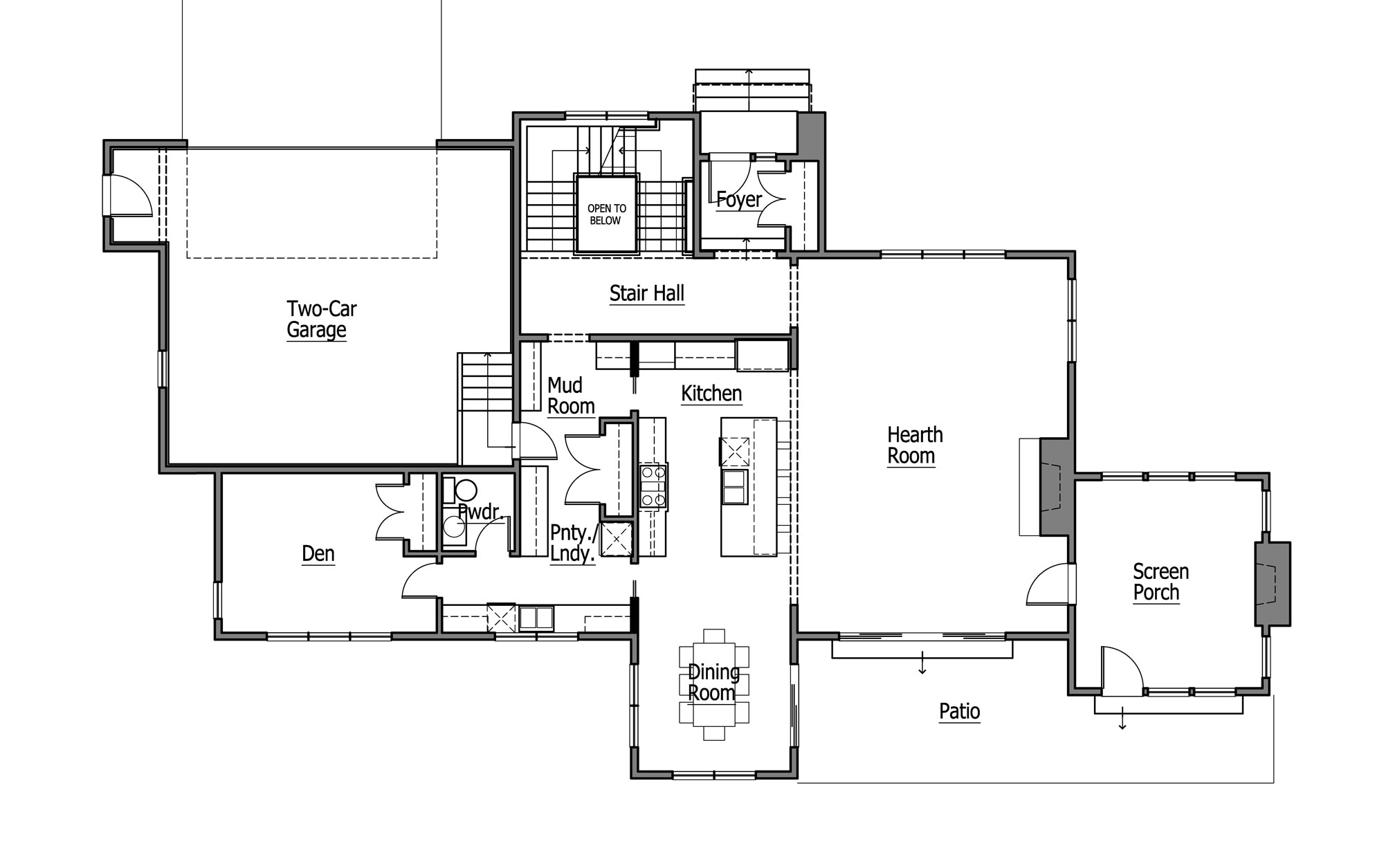
Inside, the luxury continues across three levels of living. The main level welcomes you with a chef-inspired kitchen, a generous scullery with high-end appliances, a formal dining room, and a cozy den that can easily flex as an additional 7th bedroom. The showstopping Hearth Room sits just off the kitchen and is truly the heart of the home—anchored by a two-story flat ceiling that brings volume, light, and architectural grace into everyday living. It’s a space made for gathering, unwinding, and soaking in the ambiance of home.

A screened-in porch with a gas fireplace, connected to the Hearth Room, invites morning coffee or evening cocktails all year round.
Upstairs, four spacious bedrooms each feature their own en-suite and walk-in closet, offering the ultimate privacy and comfort. The crown jewel? A primary suite with a private lounge, fireplace, and rooftop deck that captures the breeze from the nearby lake. The primary spa bath boasts a soaking tub, heated floors, and a custom ceramic shower designed for a serene escape.

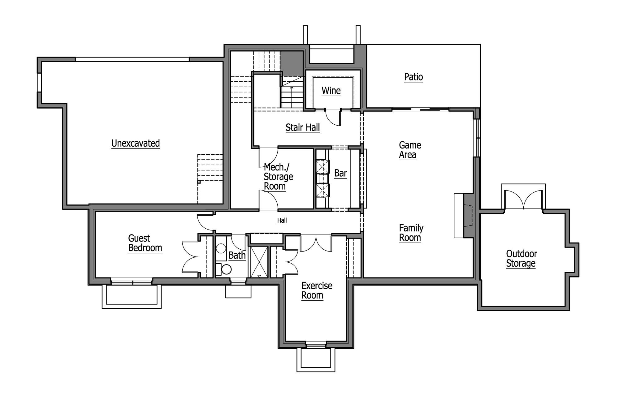
The walkout lower level is perfect for entertaining with a large family room, exercise space, 3/4 bath, guest suite, a humidity-controlled wine room, and a fully equipped bar—all leading out to a stamped concrete patio and the lush backyard beyond.

Pella windows bathe the home in natural light, and thoughtful designer details elevate each space. The design is polished, contemporary, and sophisticated—every inch of this home has been created with lifestyle in mind.

Minutes to local marinas, restaurants, boutique shopping, and parks, and located in the Westonka School District. Whether boating, dining at nearby Lord Fletcher’s, paddleboarding at sunrise, or ice skating in winter, this home is your gateway to luxury, year-round Minnetonka living.

Estate Highlights

Sale Price: $ 2,780,000
Lot Size: 0.49 acres
Lot Dimensions: 2,154 sqft
Year Built: 2026
Bedrooms: 7 bed
Bathrooms: 6 bath
Garage Stalls: 4
Finished Sq Ft: 5,867 sqft

Vendor Sponsor

Architectural & Design Videos

1
1545 Minnie Ave - Main Level Overview
1545 Minnie Ave - Main Level Overview
2
1545 Minnie Ave - Lower Level Bar
1545 Minnie Ave - Lower Level Bar
3
1545 Minnie Ave - Lower Level Overview
1545 Minnie Ave - Lower Level Overview
4
1545 Minnie Ave - Kitchen
1545 Minnie Ave - Kitchen
5
1545 Minnie Ave - Upper Level Bath 1
1545 Minnie Ave - Upper Level Bath 1

Location & Access

Schedule a Viewing

Interested in Learning More?

1545 Minnie Ave

Why This Property?

Local Attractions

Highlight 1 Luce Line State Trail - 3 miles
Highlight 2 Lafayette Club - 2.5 miles
Highlight 3 Sandy Beach Swim Area - 1 block
Highlight 4 Lord Fletcher’s - 1 mile
Highlight 5 Wayzata Beach - 6 miles
Highlight 6 Orono High School - 4 miles

Explore Other Signature Sites

Minnetrista
Not Yet Built
Welcome to 5990 Painter Road, where modern coastal luxury meets tranquil Minnetrista charm on nearly 4 acres of picturesque land. This thoughtfully designed new construction home by Omni Custom Builders is tucked into a peaceful cul-de-sac of just 27 properties, just blocks from Lake Minnetonka’s public beaches and scenic trails.
Lot Size: 3.84acres Finished Sq Ft: 4,882sqft