5990 Painter Rd

5990 Painter Rd, Minnetrista, MN 55364
$ 1,970,000
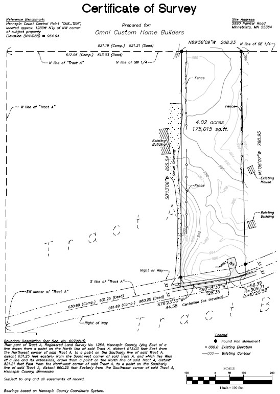
3.84 acres
167,169 sqft

Welcome to 5990 Painter Road, where the essence of modern coastal luxury intertwines with the serene charm of Minnetrista, all set on nearly 4 acres of breathtaking land. This meticulously crafted new construction by Omni Custom Builders is nestled within a tranquil cul-de-sac comprising just 27 residences, mere blocks from the public beaches and scenic trails of Lake Minnetonka.

Every detail of this 4,882 sq ft home has been thoughtfully curated to embody the elegance of modern coastal design, from its sophisticated architectural features to its airy, light-filled open layout.

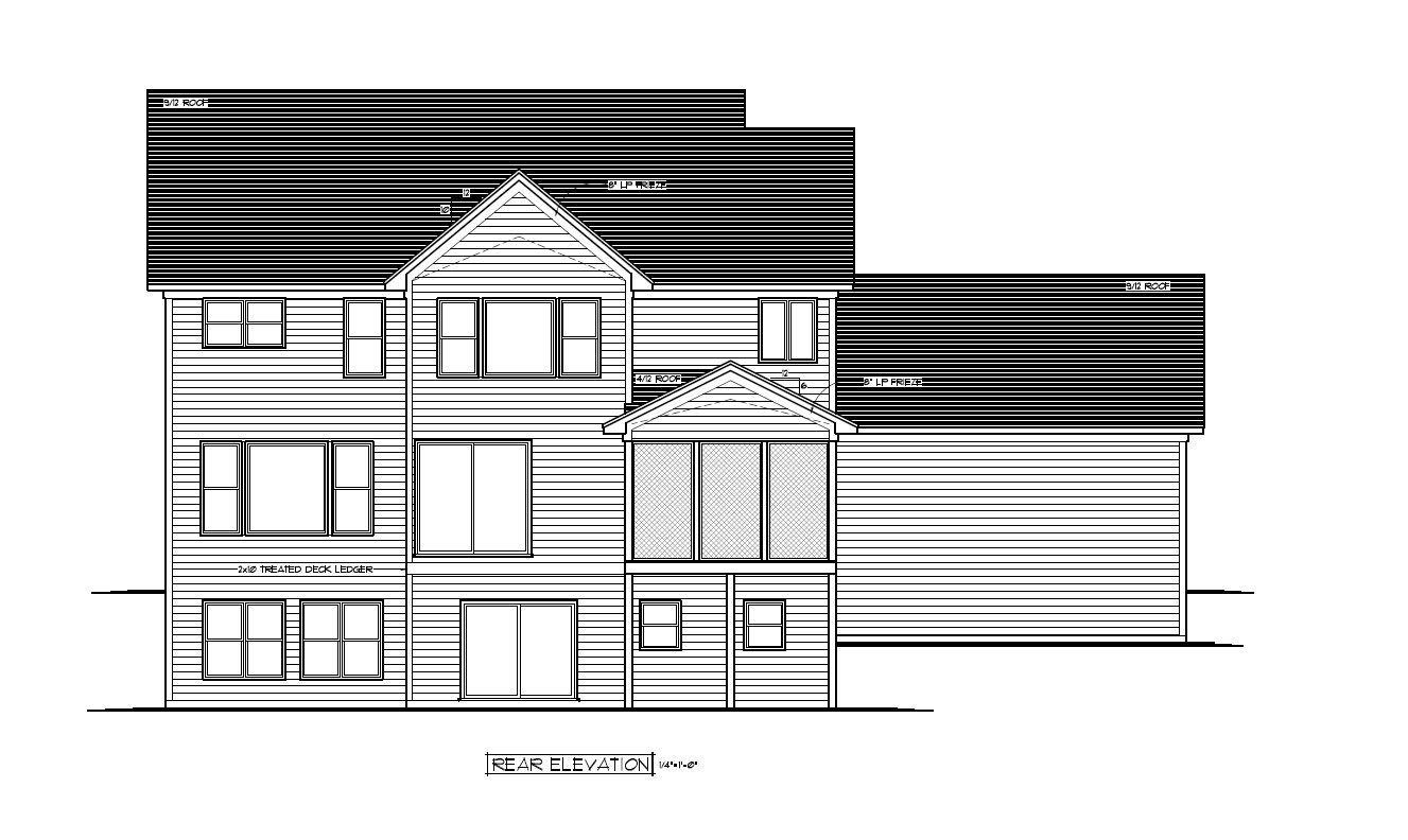
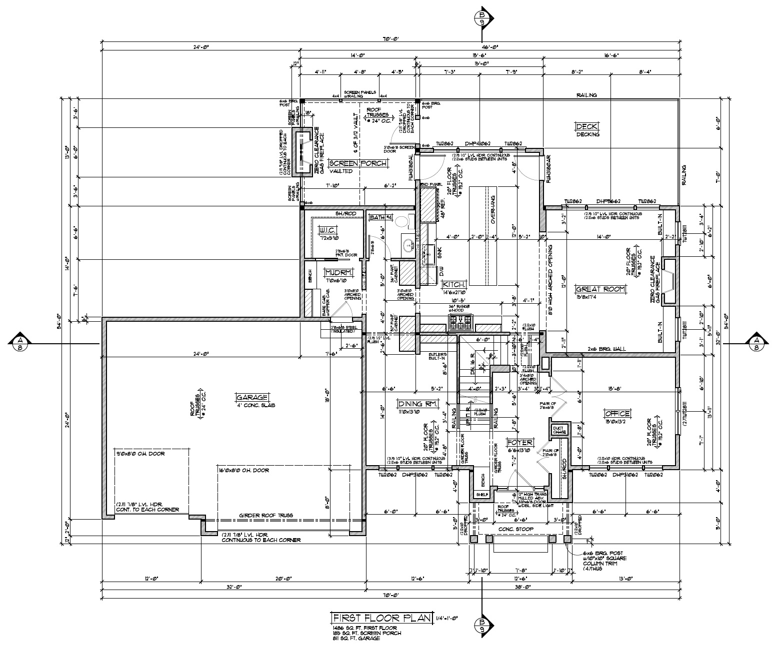
The main level greets you with a grand entry that ascends to the second floor, a sun-drenched Great Room complete with a gas fireplace that exudes warmth and intimacy, an office/den (which includes an optional closet), and a mudroom equipped with lockers and a closet. The dining and kitchen area seamlessly integrates into the open-concept design, providing ample space for entertaining family and friends. The designer kitchen boasts exquisite Cambria surfaces, top-of-the-line commercial-grade appliances, and a separate pantry for additional storage. A covered porch, featuring an optional gas fireplace, beckons you to savor the beauty of Minnesota’s seasons year-round.

Ascending to the upper level, the vaulted Primary Suite serves as a true retreat, complete with an optional private lounge or bonus room, an expansive walk-in closet, and a spa-like bath that includes heated floors, and a freestanding soaking tub and an oversized tiled shower. This level also hosts three additional bedrooms, two of which feature en-suites and walk-in closets, while the third has convenient access to a shared bathroom across the hall with a separate entrance. A laundry room on this floor offers a picturesque view of the serene backyard woods. There is also the possibility of transforming the bonus lounge into a fifth bedroom, which would extend outward to align with the wall of the office below.

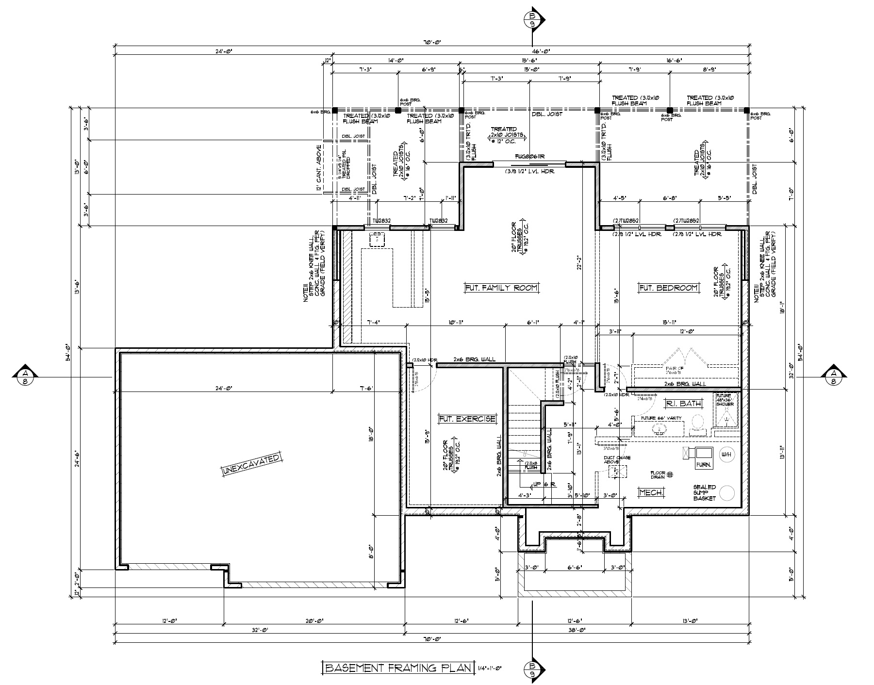
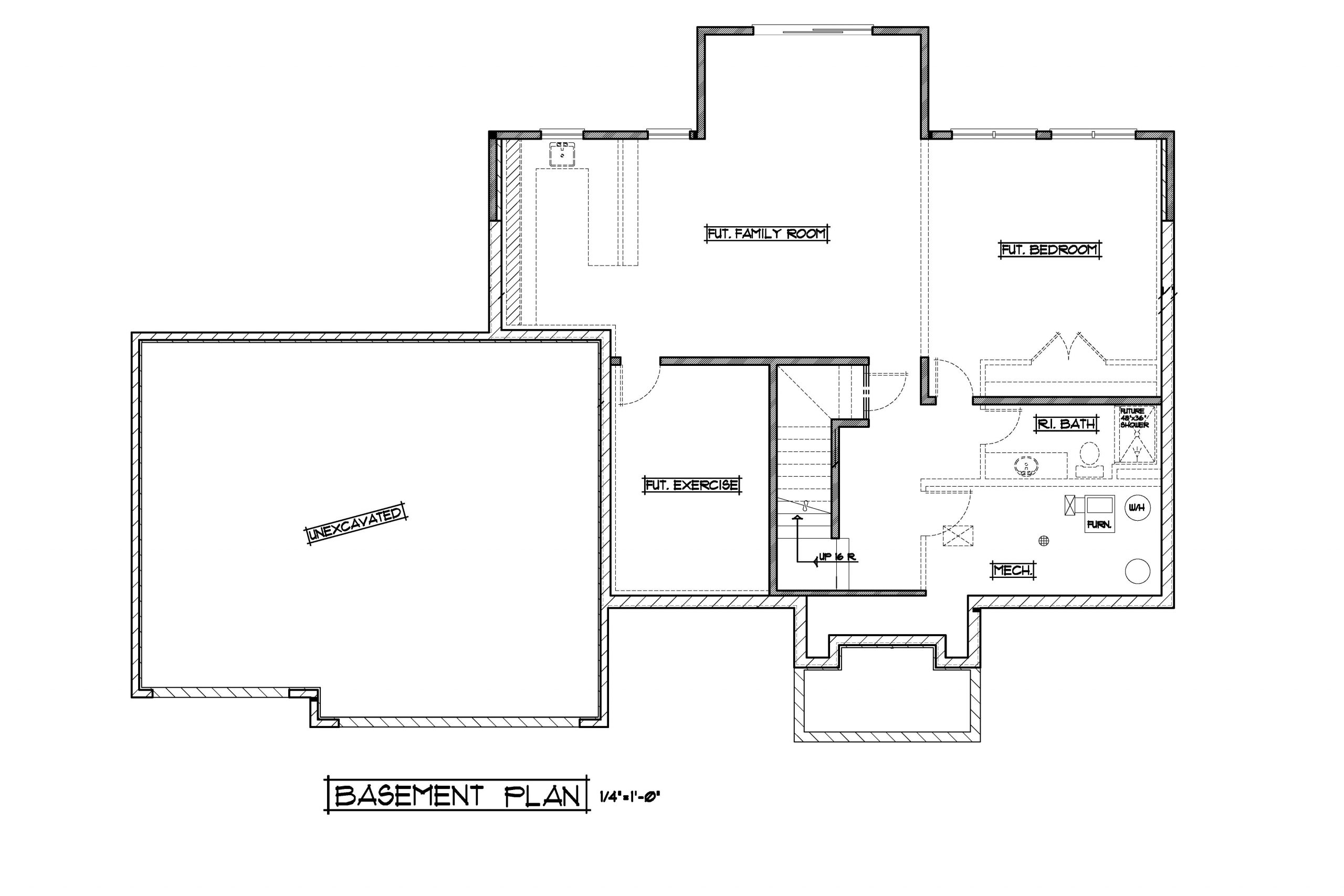
On the lower level, the walkout area features a generously sized family room with the option to incorporate a fireplace and bar, as well as the potential to add another laundry room within the storage area. Additionally, there is a fifth bedroom and bathroom, providing ample space for guests or family members.

Estate Highlights

Sale Price: $ 1,970,000
Lot Size: 3.84 acres
Lot Dimensions: 167,169 sqft
Year Built: 2026
Bedrooms: 5 bed
Bathrooms: 5 bath
Garage Stalls: 3
Finished Sq Ft: 4,882 sqft

Architectural & Design Videos

1
5990 Painter Rd - Primary Bath
5990 Painter Rd - Primary Bath
2
5990 Painter Rd - Kid's Ensuite
5990 Painter Rd - Kid's Ensuite
3
5990 Painter Rd - Ensuite #3
5990 Painter Rd - Ensuite #3
4
5990 Painter Rd - Kitchen / Office
5990 Painter Rd - Kitchen / Office
5
5990 Painter Rd - Laundry
5990 Painter Rd - Laundry

Location & Access

Schedule a Viewing

Interested in Learning More?

5990 Painter Rd

Why This Property?

Explore Other Signature Sites