3271 Casco Cir

3271 Casco Cir, Wayzata, MN 55391
$ 2,930,000
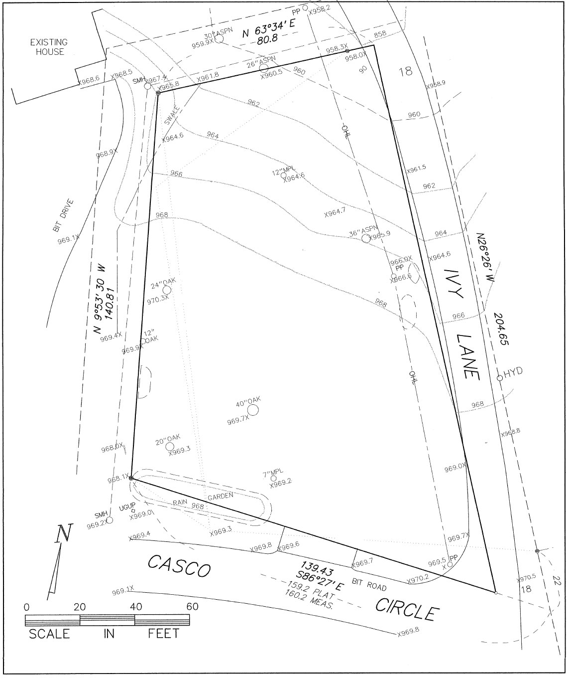
0.43 acres
18,600 sqft

Welcome to 3271 Casco Circle—an architecturally stunning new construction home on the coveted Casco Point Peninsula. Directly across from Casco Point Park and just a short stroll to the neighborhood swim area, this 6-bedroom, 6-bathroom home is positioned to capture lake views from every angle. With more than 6,466 finished square feet, this modern residence with subtle Spanish influences blends lakeside charm with refined design.

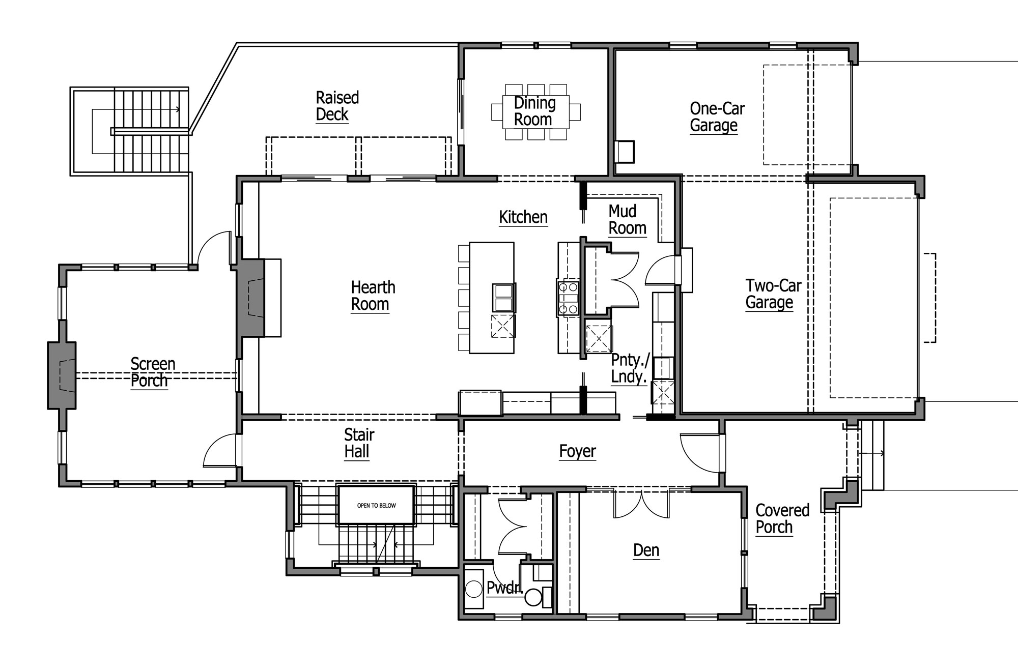
Crafted by Omni Custom Builders, the layout features a main-level Hearth Room with a dramatic flat ceiling and Venetian plaster fireplace, a gourmet kitchen with commercial-grade appliances and Cambria countertops, plus a back kitchen scullery for elevated entertaining. Pella windows, live brass fixtures, rod iron stair railings, and a 4-Season porch with fireplace create warmth and elegance. The formal dining room, den/optional 7th bedroom, 4-Season porch with an oversized deck overlooking the lake all add functionality and grace.

Arched architectural elements and subtle Spanish tile design details are woven throughout the home. Upstairs, the ~820 square foot vaulted Primary Suite boasts a spa-style bath with heated floors, soaking tub, and ceramic walk-in shower. It opens onto a lake-facing rooftop deck and includes a private lounge space. Each additional bedroom includes its own ensuite bath and walk-in closet.

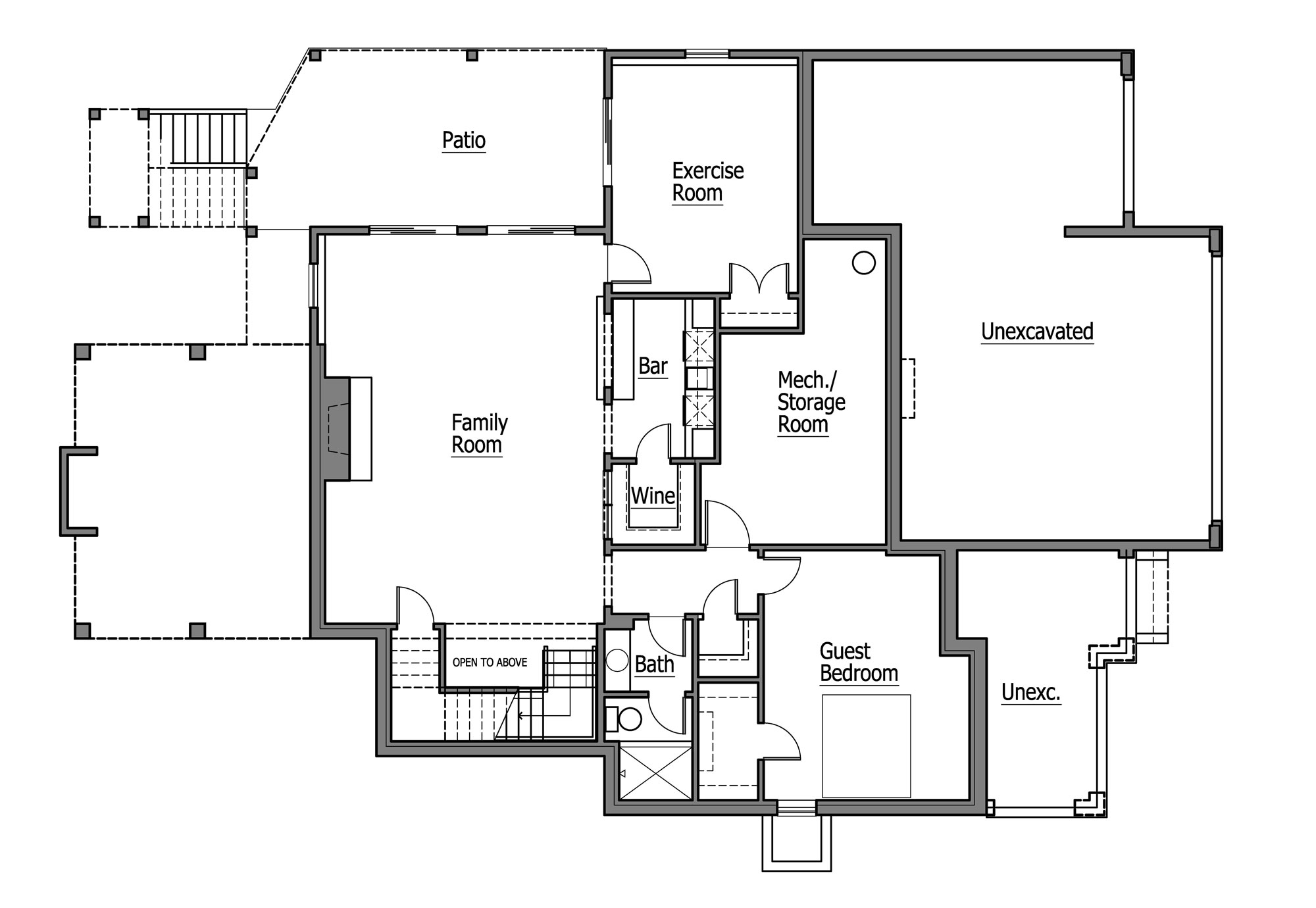
The lower level was made for luxurious living—10-foot ceilings, full lookout windows, a gas fireplace in the family room, a dedicated fitness room, a guest suite, and a full bar with a humidity-controlled wine room. Outside, enjoy a deck with lake views, and the 3-stall garage offers storage for boats, bikes, and water toys.

Casco Point is one of Lake Minnetonka’s most beloved neighborhoods—quiet and picturesque yet close to Lord Fletcher’s, Al & Alma’s, Excelsior’s boutiques, and Wayzata’s vibrant downtown. From paddleboarding and boating in the summer to skating and snowshoeing in the winter, this home offers year-round elegance, privacy, and a front-row seat to Minnesota’s finest lake lifestyle.

Estate Highlights

Sale Price: $ 2,930,000
Lot Size: 0.43 acres
Lot Dimensions: 18,600 sqft
Year Built: 2026
Bedrooms: 6 bed
Bathrooms: 6 bath
Garage Stalls: 3
Finished Sq Ft: 6,466 sqft

Vendor Sponsor

Architectural & Design Videos

1
3271 Casco Cir - Lighting Overview
3271 Casco Cir - Lighting Overview
2
3271 Casco Cir - Kitchen & Scullery
3271 Casco Cir - Kitchen & Scullery
3
3271 Casco Cir - Primary Bath
3271 Casco Cir - Primary Bath
4
3271 Casco Cir - Laundry Room
3271 Casco Cir - Laundry Room
5
3271 Casco Cir - Bar
3271 Casco Cir - Bar

Location & Access

Schedule a Viewing

Interested in Learning More?

3271 Casco Cir

Why This Property?

Explore Other Signature Sites